アイランドキッチン
CADデータ20選
(dxf,dwg,jww,pdf)
こんな悩みを抱えてませんか?
オリジナルキッチンで差別化したい
✔インテリアに関して目の超えたお客様を満足させたい。
✔自社のキッチンの設計パターンが決まりきっている。
✔ほかの実例を参考にしたい。
アイランドキッチンは家の主役
腕の見せ所
広いリビングダイニングはなんといってもアイランドキッチンが魅力です。
そんな家の主役とも言えるキッチンのデザインを思うようにできたらと思いませんか?
飽きのこないオリジナルデザイン
はじめは喜んでいたキッチンもほかの家にも普及し始めるといつかは飽きがくるものです。
いつまでも飽きがこない条件は完全オリジナルであることです。
ほかでは決して見れません
大げさではありません
普通のキッチンの設計図であれば何とか手に入るとしてもアイランドキッチンのデータに関しては非常に希です。
それにデータを保持している会社では社外秘扱いとなっていますので一切表にはでません。
ですから表に出ているもの、出せるものはそれなりと思ったほうが良いでしょう。
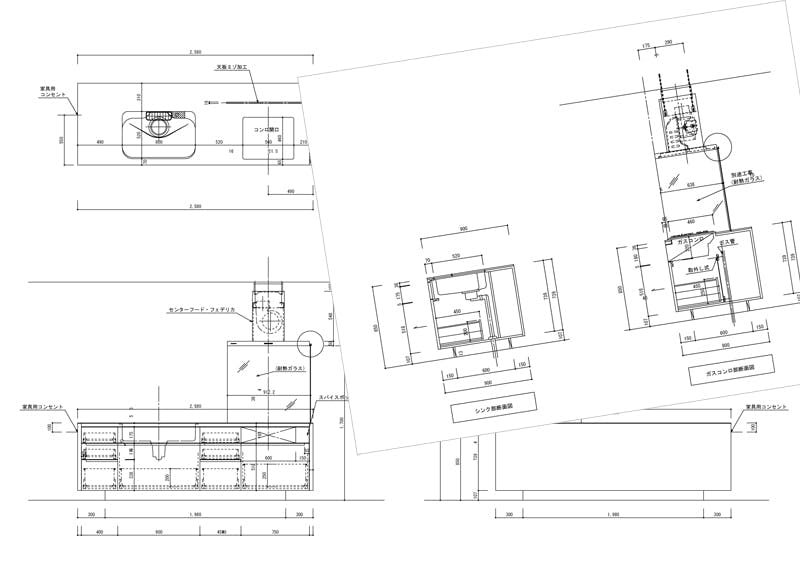
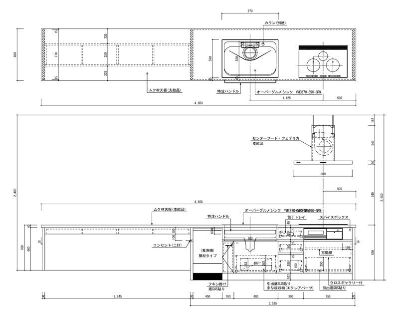
工場に渡せる図面
収録している図面は断面詳細図を含んでいますので工場でそのまま作れるものです。
どんなにキッチンの形にこだわって設計したとしても工場で作れなければ意味はありません。
キッチンの設計に関しては決しておろそかにできないポイントがあるのです。
作品集
キッチンについては特注対応できないと思っている
キッチンの設計を依頼されることは設計の技術力を認められたと嬉しくなるものです。
お客様は特注の家具は設計してもらえると思っていても、キッチンについては特注対応できないと思い込んでいます。
それは悲しくありませんか?
「キッチンの提案もおまかせ下さい」と言えるのなら嬉しくありませんか?
上位クラスのインテリアを提案しましょう。
コンテンツ内容
[CADデータ集]
フォルダーにはCADデータの他に写真と解説動画を含んでいますので、動画を見ながら図面を開くと理解が深まります。(写真については含まれていないフォルダーもあります)
特別先行価格
4,980円
今すぐ購入する
制作
カワジリデザイン(k-design)
Profile
家具工場勤務、建具メーカー勤務を経て1993年に独立。
以来もハウスメーカー、ゼネコン、設計事務所から数多くのオーダー家具の設計と施工管理の依頼を請けてきました。
住宅の設計担当者やインテリアコーディネーターの勉強会、研修などにも講師として数度呼ばれた経験もあります。
現在はお客様からのご依頼を中心に、全国へ向けたTVボードの販売と家具データ販売、家具の記事のライティングを中心に活動しています。
ほかのCADデータはこちらです
TVボード設計CADデータ集
設計パターン64セット(dxf,dwg,jww,pdf)
定価15,000円→先行特別価格4,980円
詳細
階段設計CADデータ集
設計パターン21セット(dxf,dwg,jww,pdf)
定価9,800円→先行特別価格4,980円
詳細
TVボード設計CADデータ集64セット
階段設計CADデータ集21セット
アイランドキッチンCADデータ20選
(dxf,dwg,jww,pdf)
定価35,000円→先行特別価格9,800円
詳細
特定商取引法に基づく表記