階段設計CADデータ
21セット
(dxf,dwg,jww,pdf)
こんな悩みを抱えてませんか?
よくある悩み
✔インテリアに関して目の超えたお客様を満足させたい。
✔持っているスチール階段の設計パターンが決まりきっている。
✔ほかの実例を参考にしたい。
家のインテリアは階段デザインから
インテリアと言うとリビングやダイニングの家具をどのようにしようかと考えるものですが、設計においては階段のデザインから始まっているものです。
ですがそういった意識を持ってはいても階段の設計図というのは家具以上に少なく、参考になる図面も見つからないものです。
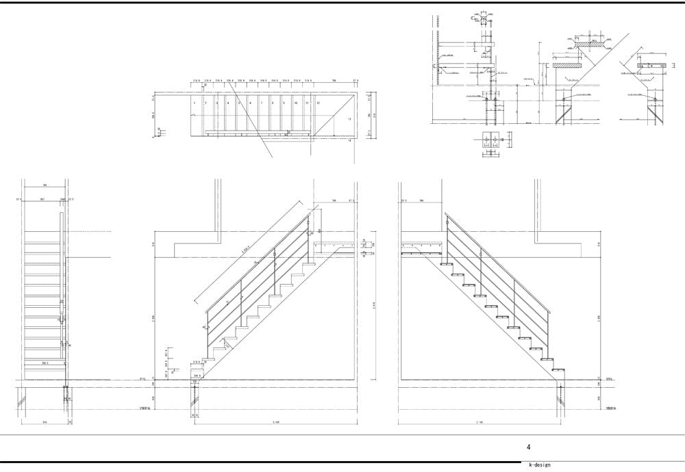
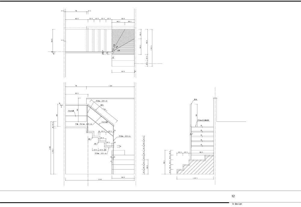
そこでここでは、その階段、特にスチール階段の施工図面を公開することにしました。
コンテンツ内容
[CADデータ集]
金物の細部については、設計士のチェックやアドバイスはもとより、金物屋さんのアドバイスも取り入れながら施工するに至っていますので、すでに10年以上経っている施工に関しても問題は一つも発生していません。
データの使用に関しては一つ心配事があります
数々の施工例の中から、21データをここではまとめています。
(スチールではない階段、手すりだけの図面も少し含んでいます。いずれにしましても階段のパターンを多くお見せしたいと思ってのことですのでご了承ください。)
ただデータの使用に関しては一つ心配事があります。
それはある程度の階段の知識がなければこの図面集を使うのは多少困難であるかも知れないという点です。
ですが階段の設計にある程度取り組んでいて、微細な数字の意味を汲み取る目があるならばきっと楽しめるデータとなっていると自負しています。
ですからこのデータ集には特に解説のための動画も付けていません。
なぜなら階段の設計で悩むポイントはある程度決まっているからです。
そして私自身、数多くの図面を見たならば必ずヒントを見つけることができると経験的に知っていますので、そのように同じ思いを持っている方にこの図面集をご利用いただければ価値的だと思っています。
階段の図面については完全、未完全なものも含まれ、スチール部分の詳細も載せたりしていますので現場取付についても分かる図面も収録しています。
他に、フォルダーの中には完成写真も交えていますので、飽きることなく見ていただけると思っています。
作品集
特別先行価格
4,980円
今すぐ購入する
制作
カワジリデザイン(k-design)
Profile
家具工場勤務、建具メーカー勤務を経て1993年に独立。
以来もハウスメーカー、ゼネコン、設計事務所から数多くのオーダー家具の設計と施工管理の依頼を請けてきました。
住宅の設計担当者やインテリアコーディネーターの勉強会、研修などにも講師として数度呼ばれた経験もあります。
現在はお客様からのご依頼を中心に、全国へ向けたTVボードの販売と家具データ販売、家具の記事のライティングを中心に活動しています。
ほかのCADデータ集はこちらです
TVボード設計CADデータ集
設計パターン64セット(dxf,dwg,jww,pdf)
定価15,000円→先行特別価格4,980円
詳細
アイランドキッチンCADデータ20選
(dxf,dwg,jww,pdf)
定価9,800円→先行特別価格4,980円
詳細
TVボード設計CADデータ集64セット
階段設計CADデータ集21セット
アイランドキッチンCADデータ20選
(dxf,dwg,jww,pdf)
定価35,000円→先行特別価格9,800円
詳細
特定商取引法に基づく表記