有限会社 ヘルプメイトグループ

ユニバーサルデザインプロデュース企業

ユニバーサルデザイン社会をリードし
誰もが泊まれるホテルを作ること
それが私たちの使命です 

UNVERSAL DESIGN HOTEL

ビジネス提案書

狙う市場 事業内容

狙う市場
高齢者、障害者、健常者

事業内容
高齢者、障害者、健常者、誰にも優しい世界一のユニバーサルデザインホテルの建設

なぜその事業を選んだのか

なぜその事業を選んだのか

 現在、バリアフリールームやユニバーサルデザインルームを持っているホテルは、あるものの、100室に1室か2室しかなく、泊まりにくいし、介助しにくい。

   
高齢者や障害者は、自分の家は、使い易い様に、バリアフリーやユニバーサルデザインになっている。

 家よりも不便なところへわざわざお金をかけて行きたくない。旅に出なくなっているという悪循環でした。

 そんなハンディのある方や家族を“旅”に連れ出し、暮らすようにゆっくり泊ってもらい、また来たいと言ってもらえるようなホテルを作りたいと思っています。そこはもちろんハンディのあるなしに関わらず宿泊できる本当の意味でのユニバーサルデザインのホテルにすることです。

 この私の描いている宿を実現することで観光から地域活性化できたらと思います。

経営者の紹介

経営者の紹介

米倉 仁

1961年福岡市生まれ。福岡市立博多工業高校を卒業後、自衛隊
に入隊。宮崎県産業開発青年隊に入隊ののち、あさひ産業株式会社へ入社。23歳のときに事故で頚椎損傷し、車椅子生活に。

1991年3月28日、有限会社ヘルプメイトグループを立ち上げ、介
護用品の販売、イベント企画などを行う。

2002年1月21日、
NPO法人自立支援センターおおいたの理事長に就任し(現会長)、障害者の自立支援、訪問介護サービス、バリアフリー・ユニバーサルデザインのコンサルタント、別府・大分バリアフリー観光センター運営などを手がける。

2016年5月、
自叙伝「車いすの暴れん坊」を出版

事業計画
出資金の使い道

事業計画

高齢者や障害者にも対応できるホテル
リクライニングベッドやリフトを付ける
星野リゾートのユニバーサルデザイン版のようなホテル

出資金の使い道

ユニバーサルデザインホテルの建設
土地の取得
運営費

高級ユニバーサルデザインの宿

☆本物の贅沢を味わってもらう

☆些細な要望を叶えてあげたい

☆付かず離れずの気配り 
☆障がい当事者目線の介護機器導入

☆施設感を無くし、高級ホテルのようにセンス良く

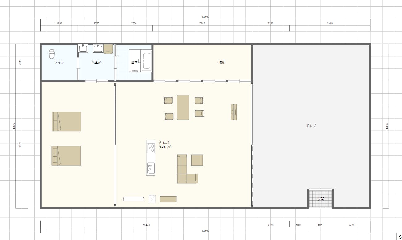
ユニバーサルデザインの宿平面図

リフト

リクライニング セミダブルベッド

介護用ベッドではなく、健常者用のリクライニングベッドで、読書やテレビを見るときに便利セミダブルサイズ3モーター

どうして高級宿としたのか

現状の宿泊スタイルは、大きく2つに分かれることが
わかった

観光をメインで、宿にお金をかけない
 AirBnB(エアービーアンドビー)やゲストハウスなど

休養をメインで、とことんお金をかける
 星野リゾートなどの高級ホテル

月に一度の不便な旅行よりも、半年や年に一度でも充実した快適なものを求める

       
         
ハイクラスな高齢者や障がい者をターゲットに!
  (今後の超高齢化社会も見据えて)

後者ターゲットにし、リピーターのたくさんいる
高級宿を展開
 

そのために、私がしたこと

アンケート結果

あなたは、一日一組限定ユニバーサルデザインの宿に
いくらまで払えますか?

あなたは、旅行に行きたいですか?

あなたが、旅で求めることは?

ユニバーサルデザインの宿に、欲しい設備は?

印象的だった声 そこから分かったこと

アクセス案内

お問い合わせ

お名前(姓・名)必須
メールアドレス必須
電話番号任意
業種任意
お問い合わせ内容必須